>

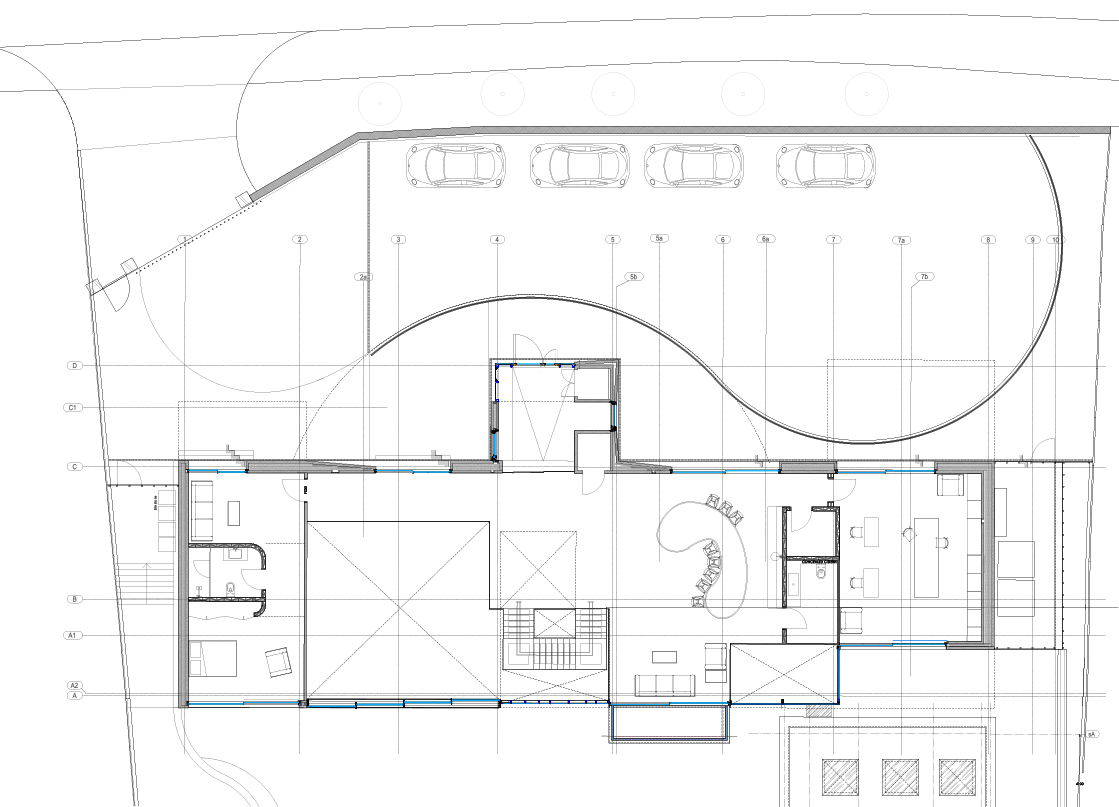
New built modern 1100sqm home with a new infinity pool, underground driveway & integrated garage.


-

The front driveway and landscape shape is derived from the ancient Hindu symbol 'Aum'.The driveway is wide enough to enable two-way traffic and is shaped to provide space for a car turning circle at its base.